DESTACADO DN INMO
El piso reformado de amplios ventanales ideal para quienes quieren luz en pleno centro de Pamplona
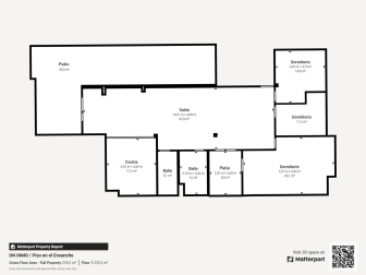
Se trata de una vivienda de 150 m² útiles y unos 60 m² de terraza, muy luminosa y moderna, ideal para familias


Publicado el 08/05/2025 a las 09:44
DN INMO presenta una vivienda totalmente reformada, amplia, de espacios generosos, abiertos, llena de luz, en una ubicación inmejorable, y con un patio-terraza de casi 60 m2 en pleno centro de Pamplona.
Ubicado en la privilegiada calle Aralar, al pie de la plaza de Salesianos, este piso de 150 m² útiles aproximadamente es la combinación perfecta de amplitud, comodidad y modernidad. Totalmente reformado hace 5 años, ofrece un espacio ideal para disfrutar de una vida tranquila y cómoda en una zona con excelente comunicación y todos los servicios a tu alcance.
Su zona de día, espectacular por su amplitud y espacios abiertos donde distinguimos numerosas zonas bien diferenciadas, es un lugar de reunión ideal para recibir y disfrutar de tu casa: el espacioso salón con su zona de estar y su pequeño patio cerrado con un encanto único; la zona de comedor anexa a una moderna cocina; el área de despacho con su amplio ventanal y salida a un patio con zona de salón exterior y área de juegos para los más pequeños.
La vivienda cuenta con 3 habitaciones amplias, destacando la habitación principal, que incluye zona de vestidor. Las otras dos habitaciones también son espaciosas, perfectas para toda la familia. El piso también dispone de dos baños completos.
La propiedad es muy luminosa, gracias a sus amplios ventanales que permiten el paso de luz natural durante todo el día. Además, cuenta con calefacción por suelo radiante que aporta calidez a cada rincón.
Ubicado en una zona con excelentes conexiones de transporte público, además de estar rodeado de colegios, supermercados y zonas verdes, es el lugar ideal para quienes buscan calidad de vida y comodidad.
Existe la posibilidad de garaje en alquiler en la zona. ¡No pierdas la oportunidad de visitar este fantástico piso!




















