Vivienda
Un enorme ático en 'U' para vivir con vistas panorámicas al río Arga de Pamplona
Para los amantes de las grandes terrazas, este vivienda cuenta con más metros a la intemperie que techados


Actualizado el 07/04/2026 a las 10:16
Con la primavera recién estrenada y los termómetros escalando grados, qué mejor que disponer de una vivienda con una gran terraza donde aprovechar cualquier rayo de sol sin tener que salir de casa. Hay en el área de Pamplona 58 áticos disponibles a la venta, pero uno destaca por su forma en 'U' y contar con un espacio abierto más grande incluso que la propia vivienda.
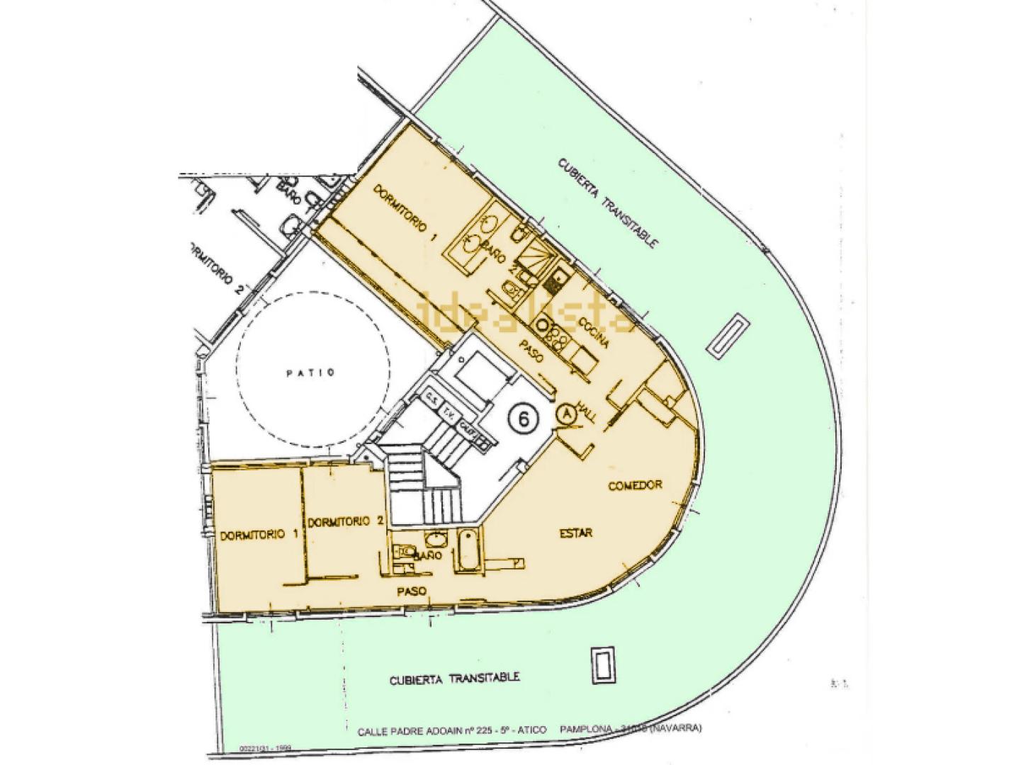
Situado en el número 225 de la calle Padre Adoáin, este caprichoso ático cuenta con una vivienda de 108 m2 construidos en un quinta planta. La vivienda fue reformada y los metros que antes tenía de pasillo han servido para ampliar la cocina y el salón.


Actualmente, los metros cubiertos de la vivienda se reparten en dos alas. La primera cuenta con orientación suroeste y en ella se encuentra la cocina con despensa y el dormitorio principal, de más de 20 m2, que cuenta además con un baño en suite.




El segundo ala de la casa, con orientación noroeste, aloja dos dormitorios y un segundo baño completo. Un amplio salón con chimenea de más de 30 m2 sirve de nexo de unión de las dos alas.




Esta composición en 'U' hace una enorme terraza de 140 m2 con vistas panorámicas sobre el río Arga y a la ciudad de Pamplona rodee la mayor parte de la vivienda. Se puede acceder a ella desde dos de los dormitorios, la cocina comedor y el salón. El tercer dormitorio recibe la iluminación de una ventana que da a un patio interior. La terraza está dotada de riego automático.




Con aire acondicionado, hilo musical, trastero y plaza de garaje, esta vivienda construida en 1999 a los pies del río Arga en la Txantrea cuesta 498.000 euros.


Te puede interesar